HOTĂRÂRE nr. 1.080 din 11 decembrie 2025privind declanşarea procedurilor de expropriere a tuturor imobilelor proprietate privată, precum şi aprobarea listei imobilelor proprietate publică a statului şi a listei imobilelor proprietate publică a unităţilor administrativ-teritoriale, situate pe amplasamentul suplimentar, care fac parte din coridorul de expropriere al lucrării de utilitate publică de interes naţional "Varianta ocolitoare a municipiului Blaj"
Publicat în
MONITORUL OFICIAL nr. 1163 din 16 decembrie 2025Data intrării în vigoare 16-12-2025
Având în vedere dispoziţiile Hotărârii Guvernului nr. 603/2025 pentru reaprobarea indicatorilor tehnico-economici aferenţi obiectivului de investiţii „Varianta ocolitoare a municipiului Blaj“, judeţul Alba, precum şi prevederile art. 11 alin. (6) din Legea nr. 255/2010 privind exproprierea pentru cauză de utilitate publică, necesară realizării unor obiective de interes naţional, judeţean şi local, cu modificările şi completările ulterioare,în temeiul art. 108 din Constituţia României, republicată, precum şi al art. 5 alin. (1) şi (1^1) din Legea nr. 255/2010, cu modificările şi completările ulterioare, Guvernul României adoptă prezenta hotărâre.Articolul 1Se aprobă amplasamentul suplimentar al lucrării de utilitate publică de interes naţional „Varianta ocolitoare a municipiului Blaj“, conform variantei finale a studiului de fezabilitate, prevăzut în anexa nr. 1.Articolul 2(1) Se aprobă declanşarea procedurilor de expropriere a tuturor imobilelor proprietate privată, situate pe amplasamentul suplimentar prevăzut la art. 1, care fac parte din coridorul de expropriere al lucrării de utilitate publică de interes naţional „Varianta ocolitoare a municipiului Blaj“, aflate pe raza municipiului Blaj din judeţul Alba, expropriator fiind statul român, reprezentat de Ministerul Transporturilor şi Infrastructurii, prin Compania Naţională de Administrare a Infrastructurii Rutiere - S.A.(2) Se aprobă lista cuprinzând imobilele proprietate privată supuse exproprierii, potrivit alin. (1), situate pe raza municipiului Blaj din judeţul Alba, proprietarii sau deţinătorii acestora, aşa cum rezultă din evidenţele unităţii administrativ-teritoriale, precum şi sumele individuale aferente despăgubirilor, prevăzută în anexa nr. 2.(3) Se aprobă lista cuprinzând imobilele proprietate publică a statului situate pe amplasamentul suplimentar prevăzut la art. 1, care face parte din coridorul de expropriere al lucrării de utilitate publică de interes naţional „Varianta ocolitoare a municipiului Blaj“, prevăzută în anexa nr. 3.(4) Se aprobă lista cuprinzând imobilele proprietate publică a unităţii administrativ-teritoriale, situate pe amplasamentul suplimentar prevăzut la art. 1, care face parte din coridorul de expropriere al lucrării de utilitate publică de interes naţional „Varianta ocolitoare a municipiului Blaj“, prevăzută în anexa nr. 4.Articolul 3(1) Sumele individuale estimate de către expropriator aferente justelor despăgubiri pentru imobilele proprietate privată, situate pe amplasamentul suplimentar prevăzut la art. 1, care fac parte din coridorul de expropriere al lucrării de utilitate publică de interes naţional „Varianta ocolitoare a municipiului Blaj“, aflate pe raza municipiului Blaj din judeţul Alba, sunt în cuantum total de 3.966,19 mii lei şi se alocă de la bugetul de stat, prin bugetul Ministerului Transporturilor şi Infrastructurii, în conformitate cu Legea bugetului de stat pe anul 2025 nr. 9/2025, cu modificările ulterioare, la capitolul 84.01 „Transporturi“, titlul 56 „Proiecte cu finanţare din fonduri externe nerambursabile (FEN) postaderare“, articolul 56.48 „Programe finanţate din Fondul European de Dezvoltare Regională (FEDR) aferente cadrului financiar 2021-2027“.(2) Sumele individuale prevăzute la alin. (1) se virează de către Ministerul Transporturilor şi Infrastructurii într-un cont de trezorerie deschis pe numele Companiei Naţionale de Administrare a Infrastructurii Rutiere - S.A., în termen de cel mult 30 de zile de la data aprobării cererii de deschidere de credite, conform prevederilor art. 4 alin. (8) din Normele metodologice de aplicare a Legii nr. 255/2010 privind exproprierea pentru cauză de utilitate publică, necesară realizării unor obiective de interes naţional, judeţean şi local, aprobate prin Hotărârea Guvernului nr. 53/2011, cu completările ulterioare, la dispoziţia proprietarilor/ deţinătorilor de imobile proprietate privată, situate pe amplasamentul suplimentar prevăzut la art. 1, care fac parte din coridorul de expropriere al lucrării de utilitate publică de interes naţional, în vederea efectuării plăţii despăgubirilor în cadrul procedurilor de expropriere, în condiţiile legii.Articolul 4Ministerul Transporturilor şi Infrastructurii, prin Compania Naţională de Administrare a Infrastructurii Rutiere - S.A., răspunde de realitatea datelor înscrise în lista cuprinzând imobilele proprietate privată şi publică, situate pe amplasamentul suplimentar prevăzut la art. 1, care fac parte din coridorul de expropriere al lucrării de utilitate publică de interes naţional, de corectitudinea datelor înscrise în documentele care au stat la baza stabilirii acestora, precum şi de modul de utilizare, în conformitate cu dispoziţiile legale, a sumei alocate potrivit prevederilor prezentei hotărâri. Articolul 5Planul de amplasament suplimentar al lucrării de utilitate publică de interes naţional, prevăzut la art. 1, se aduce la cunoştinţa publică şi prin afişarea la sediul consiliului local implicat şi, respectiv, prin afişare pe pagina proprie de internet a expropriatorului, în condiţiile legii.Articolul 6Anexele nr. 1-4 fac parte integrantă din prezenta hotărâre.
PRIM-MINISTRU
ILIE-GAVRIL BOLOJAN
Contrasemnează:
Viceprim-ministru,
Marian Neacşu
Ministrul transporturilor şi infrastructurii,
Ciprian-Constantin Şerban
Ministrul finanţelor,
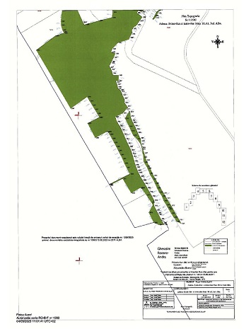
Alexandru NazareBucureşti, 11 decembrie 2025.Nr. 1.080.Anexa nr. 1*)*) Anexa nr. 1 este reprodusă în facsimil. PLAN DE AMPLASAMENT![]()
![]()
![]()
![]()
![]()
![]()
![]()
![]()
![]()
![]()
![]()
![]()
Anexa nr. 2LISTAcuprinzând imobilele proprietate privată situate pe amplasamentul suplimentar,care fac parte din coridorul de expropriere al lucrării de utilitate publicăde interes naţional „Varianta ocolitoare a municipiului Blaj“, aflate pe raza municipiului Blajdin judeţul Alba, proprietarii sau deţinătorii acestora, precum şi sumele individuale aferente despăgubirilor
*) Pentru toate poziţiile în care la coloana „Nume/prenume proprietar/deţinător“ se regăseşte menţiunea „Proprietar neidentificat“, astfel cum reiese din evidenţele unităţilor administrativ-teritoriale, numele proprietarilor/deţinătorilor vor fi identificate ulterior, în vederea completării documentaţiilor necesare pentru punerea în aplicare a măsurilor de expropriere în condiţiile legii.Anexa nr. 3LISTAcuprinzând imobilele proprietate publică a statului situate pe amplasamentul suplimentar,care fac parte din coridorul de expropriere al lucrării de utilitate publicăde interes naţional „Varianta ocolitoare a municipiului Blaj“, aflate pe raza municipiului Blaj din judeţul Alba
Anexa nr. 4LISTAcuprinzând imobilele proprietate publică a unităţii administrativ-teritoriale situate pe amplasamentul suplimentar, care fac parte din coridorul de expropriere al lucrării de utilitate publică de interes naţional „Varianta ocolitoare a municipiului Blaj“, aflate pe raza municipiului Blaj din judeţul Alba
-----

| EMITENT |
Având în vedere dispoziţiile Hotărârii Guvernului nr. 603/2025 pentru reaprobarea indicatorilor tehnico-economici aferenţi obiectivului de investiţii „Varianta ocolitoare a municipiului Blaj“, judeţul Alba, precum şi prevederile art. 11 alin. (6) din Legea nr. 255/2010 privind exproprierea pentru cauză de utilitate publică, necesară realizării unor obiective de interes naţional, judeţean şi local, cu modificările şi completările ulterioare,în temeiul art. 108 din Constituţia României, republicată, precum şi al art. 5 alin. (1) şi (1^1) din Legea nr. 255/2010, cu modificările şi completările ulterioare, Guvernul României adoptă prezenta hotărâre.Articolul 1Se aprobă amplasamentul suplimentar al lucrării de utilitate publică de interes naţional „Varianta ocolitoare a municipiului Blaj“, conform variantei finale a studiului de fezabilitate, prevăzut în anexa nr. 1.Articolul 2(1) Se aprobă declanşarea procedurilor de expropriere a tuturor imobilelor proprietate privată, situate pe amplasamentul suplimentar prevăzut la art. 1, care fac parte din coridorul de expropriere al lucrării de utilitate publică de interes naţional „Varianta ocolitoare a municipiului Blaj“, aflate pe raza municipiului Blaj din judeţul Alba, expropriator fiind statul român, reprezentat de Ministerul Transporturilor şi Infrastructurii, prin Compania Naţională de Administrare a Infrastructurii Rutiere - S.A.(2) Se aprobă lista cuprinzând imobilele proprietate privată supuse exproprierii, potrivit alin. (1), situate pe raza municipiului Blaj din judeţul Alba, proprietarii sau deţinătorii acestora, aşa cum rezultă din evidenţele unităţii administrativ-teritoriale, precum şi sumele individuale aferente despăgubirilor, prevăzută în anexa nr. 2.(3) Se aprobă lista cuprinzând imobilele proprietate publică a statului situate pe amplasamentul suplimentar prevăzut la art. 1, care face parte din coridorul de expropriere al lucrării de utilitate publică de interes naţional „Varianta ocolitoare a municipiului Blaj“, prevăzută în anexa nr. 3.(4) Se aprobă lista cuprinzând imobilele proprietate publică a unităţii administrativ-teritoriale, situate pe amplasamentul suplimentar prevăzut la art. 1, care face parte din coridorul de expropriere al lucrării de utilitate publică de interes naţional „Varianta ocolitoare a municipiului Blaj“, prevăzută în anexa nr. 4.Articolul 3(1) Sumele individuale estimate de către expropriator aferente justelor despăgubiri pentru imobilele proprietate privată, situate pe amplasamentul suplimentar prevăzut la art. 1, care fac parte din coridorul de expropriere al lucrării de utilitate publică de interes naţional „Varianta ocolitoare a municipiului Blaj“, aflate pe raza municipiului Blaj din judeţul Alba, sunt în cuantum total de 3.966,19 mii lei şi se alocă de la bugetul de stat, prin bugetul Ministerului Transporturilor şi Infrastructurii, în conformitate cu Legea bugetului de stat pe anul 2025 nr. 9/2025, cu modificările ulterioare, la capitolul 84.01 „Transporturi“, titlul 56 „Proiecte cu finanţare din fonduri externe nerambursabile (FEN) postaderare“, articolul 56.48 „Programe finanţate din Fondul European de Dezvoltare Regională (FEDR) aferente cadrului financiar 2021-2027“.(2) Sumele individuale prevăzute la alin. (1) se virează de către Ministerul Transporturilor şi Infrastructurii într-un cont de trezorerie deschis pe numele Companiei Naţionale de Administrare a Infrastructurii Rutiere - S.A., în termen de cel mult 30 de zile de la data aprobării cererii de deschidere de credite, conform prevederilor art. 4 alin. (8) din Normele metodologice de aplicare a Legii nr. 255/2010 privind exproprierea pentru cauză de utilitate publică, necesară realizării unor obiective de interes naţional, judeţean şi local, aprobate prin Hotărârea Guvernului nr. 53/2011, cu completările ulterioare, la dispoziţia proprietarilor/ deţinătorilor de imobile proprietate privată, situate pe amplasamentul suplimentar prevăzut la art. 1, care fac parte din coridorul de expropriere al lucrării de utilitate publică de interes naţional, în vederea efectuării plăţii despăgubirilor în cadrul procedurilor de expropriere, în condiţiile legii.Articolul 4Ministerul Transporturilor şi Infrastructurii, prin Compania Naţională de Administrare a Infrastructurii Rutiere - S.A., răspunde de realitatea datelor înscrise în lista cuprinzând imobilele proprietate privată şi publică, situate pe amplasamentul suplimentar prevăzut la art. 1, care fac parte din coridorul de expropriere al lucrării de utilitate publică de interes naţional, de corectitudinea datelor înscrise în documentele care au stat la baza stabilirii acestora, precum şi de modul de utilizare, în conformitate cu dispoziţiile legale, a sumei alocate potrivit prevederilor prezentei hotărâri. Articolul 5Planul de amplasament suplimentar al lucrării de utilitate publică de interes naţional, prevăzut la art. 1, se aduce la cunoştinţa publică şi prin afişarea la sediul consiliului local implicat şi, respectiv, prin afişare pe pagina proprie de internet a expropriatorului, în condiţiile legii.Articolul 6Anexele nr. 1-4 fac parte integrantă din prezenta hotărâre.
PRIM-MINISTRU
ILIE-GAVRIL BOLOJAN
Contrasemnează:
Viceprim-ministru,
Marian Neacşu
Ministrul transporturilor şi infrastructurii,
Ciprian-Constantin Şerban
Ministrul finanţelor,
Alexandru NazareBucureşti, 11 decembrie 2025.Nr. 1.080.Anexa nr. 1*)*) Anexa nr. 1 este reprodusă în facsimil. PLAN DE AMPLASAMENT












| Nr. crt. | Judeţul | UAT | Numele şi prenumele proprietarului/deţinătorului imobilului | Tarla | Parcelă | Categoria de folosinţă | Nr. carte funciară | Nr. cadastru/Nr. topo | Extravilan/Intravilan | Suprafaţa totală a imobilului (mp) | Suprafaţa de expropriat (mp) | Suprafaţă expropriată construcţii (mp) | Valoarea de despăgubire a terenului conform Legii nr. 255/2010 (lei) | Valoareade despăgubire a construcţiilor conform Legii nr. 255/2010 (lei) | Valoarea de despăgubire a imobilului conform Legii nr. 255/2010, cu modificările şi completările ulterioare (lei) |
| 0 | 1 | 2 | 3 | 4 | 5 | 6 | 7 | 8 | 9 | 10 | 11 | 12 | 13 | 14 | 15 |
| 1 | Alba | Blaj | Latiu Sorica, Latiu Axente-Petru | 178/1/32 | Arabil | 81042 | 81042 | Extravilan | 5.800 | 8 | 80,00 | 0,00 | 80,00 | ||
| 2 | Alba | Blaj | Oniga Nicolae-Alin, Oniga Diana | Arabil | 70349 | 459/2/2/1/2 | Intravilan | 4.100 | 345 | 39.675,00 | 0,00 | 39.675,00 | |||
| 3 | Alba | Blaj | S.C. Lukoil Romania - S.R.L. | Curţi-construcţii | 70011 | 915/3/2/1/1, 915/4/1/1 | Intravilan | 3.900 | 489 | 56.235,00 | 0,00 | 56.235,00 | |||
| 4 | Alba | Blaj | S.C. Alcedo - S.R.L. Bucureşti | 350/2/2/1 | Curţi-construcţii | 70837 | 70837 | Intravilan | 2.019 | 18 | 2.070,00 | 0,00 | 2.070,00 | ||
| 5 | Alba | Blaj | S.C. Agropec Spedition - S.R.L. | Curţi-construcţii | 71163 | 71163 | Intravilan | 4.426 | 1.643 | 188.945,00 | 0,00 | 188.945,00 | |||
| 6 | Alba | Blaj | S.C. Agropec Spedition - S.R.L. | Arabil | 71164 | 71164 | Intravilan | 5.574 | 323 | 37.145,00 | 0,00 | 37.145,00 | |||
| 7 | Alba | Blaj | Fratila Nicolae | Arabil | 72170 | 1242/1/2 | Extravilan | 5.372 | 1.509 | 15.090,00 | 0,00 | 15.090,00 | |||
| 8 | Alba | Blaj | Fratila Nicolae | 1242/1/a | Arabil | 72196 | 72196 | Extravilan | 400 | 349 | 3.490,00 | 0,00 | 3.490,00 | ||
| 9 | Alba | Blaj | S.C. Blasius - S.A. Blaj Ferma 5 | Curţi-construcţii | 74139 | 74139 | Intravilan | 1.832 | 5 | 350,00 | 0,00 | 350,00 | |||
| 10 | Alba | Blaj | Cristea Maria, Cristea Ioan-Sorin | Curţi-construcţii | 74143 | 74143 | Intravilan | 786 | 2 | 140,00 | 0,00 | 140,00 | |||
| 11 | Alba | Blaj | S.C. Agropec Spedition - S.R.L. | Curţi-construcţii | 74438 | 74438 | Intravilan | 1.800 | 11 | 1.265,00 | 0,00 | 1.265,00 | |||
| 12 | Alba | Blaj | S.C. Eco Vert - S.R.L. | Curţi-construcţii | 74480 | 74480 | Intravilan | 9.245 | 2.464 | 358 | 172.480,00 | 71.600,00 | 244.080,00 | ||
| 13 | Alba | Blaj | Anusca Adriana | Curţi-construcţii | 74481 | 74481 | Intravilan | 8.602 | 122 | 8.540,00 | 0,00 | 8.540,00 | |||
| 14 | Alba | Blaj | Anusca Adriana | Curţi-construcţii | 74482 | 74482 | Intravilan | 2.417 | 2.417 | 341 | 169.190,00 | 289.850,00 | 459.040,00 | ||
| 15 | Alba | Blaj | S.C. Agropecdionis - S.R.L., S.C. Agropec Dionis - S.R.L., S.C. Agropec Spedition - S.R.L., Hîrceaga Calin Vasile, Hîrceaga Liliana | Arabil | 74483 | 915/3/2/2, 915/4/2 | Intravilan | 1.000 | 313 | 46.950,00 | 0,00 | 46.950,00 | |||
| 16 | Alba | Blaj | S.C. Bioflora Apuseni - S.R.L. | Curţi-construcţii | 75503 | 75503 | Intravilan | 1.508 | 9 | 1.035,00 | 0,00 | 1.035,00 | |||
| 17 | Alba | Blaj | Marcu Simion Daniel, Marcu Ionela-Lidia | Curţi-construcţii | 76583 | 76583 | Intravilan | 692 | 19 | 2.185,00 | 0,00 | 2.185,00 | |||
| 18 | Alba | Blaj | Balasz Ghe. Gheorghe | 1114/7 | Arabil | 76739 | 76739 | Extravilan | 6.000 | 86 | 387,00 | 0,00 | 387,00 | ||
| 19 | Alba | Blaj | Pacurar Maria, Chibeleanu Lucretia, Marginean Stefan, Marginean Maria | 850/1 | Vii | 77841 | 77841 | Extravilan | 5.755 | 1.363 | 6.269,80 | 0,00 | 6.269,80 | ||
| 20 | Alba | Blaj | Vinczeller Stefan, Vinczeller Anuska | 850/48 | Vii | 77844 | 77844 | Extravilan | 1.800 | 720 | 3.312,00 | 0,00 | 3.312,00 | ||
| 21 | Alba | Blaj | Denes Gheorghe, Denes Stefan, Denes Andrei, Katona Irina, Szanto Maria | 850/48 | Vii | 77845 | 77845 | Extravilan | 1.800 | 482 | 2.217,20 | 0,00 | 2.217,20 | ||
| 22 | Alba | Blaj | Gaspar Csaba | 850/50 | Arabil | 77846 | 77846 | Extravilan | 6.000 | 903 | 4.063,50 | 0,00 | 4.063,50 | ||
| 23 | Alba | Blaj | Popa Ioan, Popa Floare Rodica | 1220/1/72 | Vii | 78995 | 78995 | Extravilan | 18.300 | 506 | 4.048,00 | 0,00 | 4.048,00 | ||
| 24 | Alba | Blaj | Trandafir T. Rodica, Barbat Silvia, Barbat Camelia Brînduşa | 1242/1 | Arabil | 79110 | 79110 | Extravilan | 3.895 | 1.087 | 10.870,00 | 0,00 | 10.870,00 | ||
| 25 | Alba | Blaj | Nicoara Ioan, Nicoara Mihaela | 1220/1/71 | Vii | 80202 | 80202 | Extravilan | 14.000 | 13.180 | 105.440,00 | 0,00 | 105.440,00 | ||
| 26 | Alba | Blaj | Barbat Paulina, Pacurar Ioan | 1220/1/4 | Arabil | 80403 | 80403 | Extravilan | 5.800 | 469 | 3.752,00 | 0,00 | 3.752,00 | ||
| 27 | Alba | Blaj | Galdean Ana, Morar Ana, Gherman Silvia | 1220/1/3 | Arabil | 80404 | 80404 | Extravilan | 5.800 | 107 | 856,00 | 0,00 | 856,00 | ||
| 28 | Alba | Blaj | Glogovetan Ilie, Glogovetan Marcu, Glogovetan Nicolae, Cimpian Mariana | 1208/1 | Arabil | 80406 | 80406 | Extravilan | 5.785 | 4.441 | 35.528,00 | 0,00 | 35.528,00 | ||
| 29 | Alba | Blaj | Bucur Vasile, Oniga Anuta, Glogovetan Ana, Bucur Silvia | 1206/2 | Arabil | 80408 | 80408 | Extravilan | 5.600 | 1.359 | 10.872,00 | 0,00 | 10.872,00 | ||
| 30 | Alba | Blaj | Asociaţia Bunii Gospodari Blaj | 977/2 | Păşune | 80426 | 80426 | Extravilan | 5.956 | 114 | 342,00 | 0,00 | 342,00 | ||
| 31 | Alba | Blaj | Marcu Simion Daniel | Curţi-construcţii | 80529 | 80529 | Intravilan | 510 | 17 | 1.955,00 | 0,00 | 1.955,00 | |||
| 32 | Alba | Blaj | Asociaţia Bunii Gospodari din Ciufud | Curţi-construcţii | 80575 | 80575 | Intravilan | 660 | 27 | 3.105,00 | 0,00 | 3.105,00 | |||
| 33 | Alba | Blaj | Ghizdavu Letitia Margareta, Ghizdavu Pellascio Simona Maria, Ghizdavu Letitia Liana | 1158/1/15/4 | Arabil | 81057 | 81057 | Extravilan | 6.000 | 485 | 4.850,00 | 0,00 | 4.850,00 | ||
| 34 | Alba | Blaj | Morar T. Victor, Morar T. Traian, Latiu Sorica, Latiu Axente-Petru | 178/1/3 | Arabil | 81069 | 81069 | Extravilan | 5.800 | 84 | 840,00 | 0,00 | 840,00 | ||
| 35 | Alba | Blaj | Voican Vasile, Voican Ana | 1195/1/51/2 | Vii | 81094 | 81094 | Extravilan | 6.000 | 82 | 656,00 | 0,00 | 656,00 | ||
| 36 | Alba | Blaj | Muntean Iuliana | 1195/1/33/1 | Vii | 81097 | 81097 | Extravilan | 2.900 | 1.154 | 9.232,00 | 0,00 | 9.232,00 | ||
| 37 | Alba | Blaj | Oniga Anuta | 1410/2/3/7/2/1, 1410/2/5/10/5, 1410/2/5/11/4 | Vii | 81537 | 81537 | Extravilan | 1.640 | 1.144 | 9.152,00 | 0,00 | 9.152,00 | ||
| 38 | Alba | Blaj | Muresan Teodor | 1410/2/3/11/1, 1410/2/5/10/7, 1410/2/5/11/2, 1410/2/3/10 | Vii | 81542 | 81542 | Extravilan | 1.980 | 1.834 | 14.672,00 | 0,00 | 14.672,00 | ||
| 39 | Alba | Blaj | Oprean Teodor | 1410/2/1/1/5,1410/2/1/4/1,1410/2/1/2,1410/2/1/3 | Vii | 81544 | 81544 | Extravilan | 8.600 | 7.168 | 57.344,00 | 0,00 | 57.344,00 | ||
| 40 | Alba | Blaj | S.C. Salon Di Angello - S.R.L., S.C. Salon Di Angelo - S.R.L. | Curţi-construcţii | 81612 | 81612 | Intravilan | 2.290 | 58 | 6.670,00 | 0,00 | 6.670,00 | |||
| 41 | Alba | Blaj | Mitropolia Română Unită cu Roma Greco-Catolică - domeniu privat, Vienna Energy Forta Naturala - S.R.L. | 1138/3 | Arabil | 81613 | 81613 | Extravilan | 288.345 | 4.055 | 40.550,00 | 0,00 | 40.550,00 | ||
| 42 | Alba | Blaj | Boalasz Andrei, Boalasz Margit | 190/2/b | Fâneţe | 81919 | 81919 | Intravilan | 7.578 | 1.236 | 86.520,00 | 0,00 | 86.520,00 | ||
| 43 | Alba | Blaj | Boalasz Andrei | 190/1/b | Fâneţe | 81921 | 81921 | Intravilan | 6.840 | 646 | 45.220,00 | 0,00 | 45.220,00 | ||
| 44 | Alba | Blaj | Boalasz Andrei | 190/1/b | Fâneţe | 81922 | 81922 | Intravilan | 560 | 560 | 39.200,00 | 0,00 | 39.200,00 | ||
| 45 | Alba | Blaj | Sabadus Teodora Manuela, Sabadus Sorin-Nicolae | Arabil | 81939 | 81939 | Intravilan | 5.800 | 341 | 23.870,00 | 0,00 | 23.870,00 | |||
| 46 | Alba | Blaj | Bucur Ioan | 173/9 | Arabil | 81940 | 81940 | Extravilan | 5.800 | 393 | 3.930,00 | 0,00 | 3.930,00 | ||
| 47 | Alba | Blaj | Brumar Nicolae | 173/7/1 | Arabil | 81941 | 81941 | Extravilan | 2.100 | 94 | 940,00 | 0,00 | 940,00 | ||
| 48 | Alba | Blaj | Fratila Ana-Rodica | 173/7/2 | Arabil | 81942 | 81942 | Extravilan | 3.700 | 126 | 1.260,00 | 0,00 | 1.260,00 | ||
| 49 | Alba | Blaj | Stroescu Elena | 173/4 | Arabil | 81945 | 81945 | Extravilan | 5.800 | 320 | 3.200,00 | 0,00 | 3.200,00 | ||
| 50 | Alba | Blaj | Radu Onica, Stefanescu Ana | 173/3 | Arabil | 81946 | 81946 | Extravilan | 5.800 | 7 | 70,00 | 0,00 | 70,00 | ||
| 51 | Alba | Blaj | Stefanescu Ana, Radu Onica | 173/1 | Arabil | 81951 | 81951 | Extravilan | 1.200 | 5 | 50,00 | 0,00 | 50,00 | ||
| 52 | Alba | Blaj | Ionescu Nicolae Radu | Curţi-construcţii | 83247 | 83247 | Intravilan | 12.899 | 879 | 101.085,00 | 0,00 | 101.085,00 | |||
| 53 | Alba | Blaj | Fratila Ioan | 1195/1/33/2 | Vie | 81098, TP 14164/2783 | 81098 | Extravilan | 5.800 | 130 | 1.040,00 | 0,00 | 1.040,00 | ||
| 54 | Alba | Blaj | Borsan Gheorghe | 1237/1/7 | Vie | 81510, TP 14284/3051 | 81510 | Extravilan | 4.900 | 4.898 | 39.184,00 | 0,00 | 39.184,00 | ||
| 55 | Alba | Blaj | Barbat Nicolae | 1410/2/5/10/4, 1410/2/3/5/3, 1410/2/3/7/1, 1410/2/5/11/5, 1410/2/5/9/41410/2/5/9/4 | Vie | 81536, TP 14201/1427 | 81536 | Extravilan | 860 | 517 | 4.136,00 | 0,00 | 4.136,00 | ||
| 56 | Alba | Blaj | Vintila Vasile | 1410/2/3/9/2, 1410/2/5/10/6, 1410/2/5/11/3 | Vie | 81540, TP 14180/1381 | 81540 | Extravilan | 2.100 | 1.116 | 8.928,00 | 0,00 | 8.928,00 | ||
| 57 | Alba | Blaj | Radu Onica, Stefanescu Ana | 1410/2/1/4/2, 1410/2/1/5 | Vie | 81543, TP 14180/1370 | 81543 | Extravilan | 2.800 | 1.397 | 11.176,00 | 0,00 | 11.176,00 | ||
| 58 | Alba | Blaj | Docolin Toader, Docolin Marinela | 173/11 | Arabil | 81938 | 81938 | Intravilan | 5.800 | 359 | 25.130,00 | 0,00 | 25.130,00 | ||
| 59 | Alba | Blaj | Proprietar neidentificat*) | 1220/1/5 | Arabil | 80402 | 80402 | Extravilan | 15.800 | 119 | 952,00 | 0,00 | 952,00 | ||
| 60 | Alba | Blaj | Proprietar neidentificat*) | 207/20 | Arabil | 207/20 | Extravilan | 93 | 93 | 418,50 | 0,00 | 418,50 | |||
| 61 | Alba | Blaj | S.C. Apis - S.R.L. | Curţi-construcţii | 71855 | 380/1/2/7 | Intravilan | 2.905 | 1 | 70,00 | 0,00 | 70,00 | |||
| 62 | Alba | Blaj | Ghizdavu Letitia Margareta, Ghizdavu Pellascio Simona Maria, Ghizdavu Letitia Liana | Arabil | 72401 | 392/3/2, 393/1, 393/2, 393/3, 393/4, 393/5, 393/6 | Extravilan | 29.000 | 2.262 | 22.620,00 | 0,00 | 22.620,00 | |||
| 63 | Alba | Blaj | Ghizdavu Letitia Margareta, Ghizdavu Pellascio Simona Maria, Ghizdavu Letitia Liana | Arabil | 72402 | 394/1/1, 394/2 | Extravilan | 1.900 | 174 | 1.740,00 | 0,00 | 1.740,00 | |||
| 64 | Alba | Blaj | Ghizdavu Letitia Margareta, Ghizdavu Pellascio Simona Maria, Ghizdavu Letitia Liana | Arabil | 72403 | 395/1, 395/2/1, 396 | Extravilan | 14.900 | 1.120 | 11.200,00 | 0,00 | 11.200,00 | |||
| 65 | Alba | Blaj | Ghizdavu Letitia Margareta, Ghizdavu Pellascio Simona Maria, Ghizdavu Letitia Liana | Arabil | 72404 | 399/1 | Extravilan | 6.700 | 3.247 | 32.470,00 | 0,00 | 32.470,00 | |||
| 66 | Alba | Blaj | Ghizdavu Letitia Margareta, Ghizdavu Pellascio Simona Maria, Ghizdavu Letitia Liana | Arabil | 72405 | 397/1, 397/2/1 | Extravilan | 9.551 | 643 | 6.430,00 | 0,00 | 6.430,00 | |||
| 67 | Alba | Blaj | Ghizdavu Letitia Margareta, Ghizdavu Pellascio Simona Maria, Ghizdavu Letitia Liana | Arabil | 72406 | 397/4/1/2 | Extravilan | 2.841 | 413 | 4.130,00 | 0,00 | 4.130,00 | |||
| 68 | Alba | Blaj | Oltean Daniela-Maria | Curţi-construcţii | 72992 | 72992 | Intravilan | 7.521 | 6.281 | 1.019 | 439.670,00 | 570.636,50 | 1.010.306,50 | ||
| 69 | Alba | Blaj | Mitropolia Română Unită cu Roma Greco-Catolică Blaj - domeniu privat | 181 | Arabil | 74629 | 74629 | Extravilan | 53.400 | 13.938 | 139.380,00 | 0,00 | 139.380,00 | ||
| 70 | Alba | Blaj | Maier Eugenia | 1158/1/9 | Arabil | 76245 | 76245 | Extravilan | 10.300 | 892 | 8.920,00 | 0,00 | 8.920,00 | ||
| 71 | Alba | Blaj | Ghizdavu Letitia-Margareta, Ghizdavu Pellascio Simona Maria, Ghizdavu Letitia Liana | 1240/5 | Vii | 77332 | 77332 | Extravilan | 24.300 | 12.613 | 100.904,00 | 0,00 | 100.904,00 | ||
| 72 | Alba | Blaj | Craciun Dorin, Craciun Maria | 1158/1/14 | Arabil | 77437 | 77437 | Extravilan | 11.500 | 1.037 | 10.370,00 | 0,00 | 10.370,00 | ||
| 73 | Alba | Blaj | Ghizdavu Pellascio Simona Maria | 1158/1/7 | Arabil | 77481 | 77481 | Extravilan | 8.400 | 780 | 7.800,00 | 0,00 | 7.800,00 | ||
| 74 | Alba | Blaj | Bartha Andrei | 850/45/a | Vii | 77840 | 77840 | Extravilan | 3.500 | 2.433 | 11.191,80 | 0,00 | 11.191,80 | ||
| 75 | Alba | Blaj | Adam Maria, Vinczeller Gheorghe, Vinczeller Martin | 850/1/46 | Vii | 77842 | 77842 | Extravilan | 2.000 | 1.417 | 6.518,20 | 0,00 | 6.518,20 | ||
| 76 | Alba | Blaj | Orban Vilma | 850/47 | Vii | 77843 | 77843 | Extravilan | 1.800 | 1.346 | 6.191,60 | 0,00 | 6.191,60 | ||
| 77 | Alba | Blaj | Vapler Karol | 850/90a | Vii | 77888 | 77888 | Extravilan | 5.800 | 2.162 | 9.945,20 | 0,00 | 9.945,20 | ||
| 78 | Alba | Blaj | Szancsali Bela, Szancsali I. Balaj, Szancsali Stefan, Miklós Elisabeta, Pataki S. Susana, Udvar Elisabeta | 850/90/B | Vii | 77889 | 77889 | Extravilan | 10.000 | 2.206 | 10.147,60 | 0,00 | 10.147,60 | ||
| 79 | Alba | Blaj | Balasz Gheorghe | 1101/1/1 | Arabil | 77901 | 77901 | Extravilan | 2.600 | 366 | 1.647,00 | 0,00 | 1.647,00 | ||
| 80 | Alba | Blaj | Ioo Dionisie | 1101/8 | Arabil | 77909 | 77909 | Extravilan | 2.300 | 15 | 67,50 | 0,00 | 67,50 | ||
| 81 | Alba | Blaj | Bandi Gheorghe, Agoston Susana-Eva, Bandi Andrei, Fekete Susana | 1101/10 | Arabil | 77910 | 77910 | Extravilan | 4.200 | 74 | 333,00 | 0,00 | 333,00 | ||
| 82 | Alba | Blaj | Molnar Andrei, Şarlea Ioan Virgil | 1101/11 | Arabil | 77911 | 77911 | Extravilan | 2.900 | 75 | 337,50 | 0,00 | 337,50 | ||
| 83 | Alba | Blaj | Szancsali Etusca, Ploscaru Irina, Hermenczi Etelka | 1101/8 | Arabil | 77912 | 77912 | Extravilan | 3.000 | 102 | 459,00 | 0,00 | 459,00 | ||
| 84 | Alba | Blaj | Gaspar Elisabeta | 1101/13/2 | Arabil | 77914 | 77914 | Extravilan | 1.500 | 59 | 265,50 | 0,00 | 265,50 | ||
| 85 | Alba | Blaj | Csegezi-Balázs Balazs | 1101/14 | Arabil | 77915 | 77915 | Extravilan | 3.200 | 135 | 607,50 | 0,00 | 607,50 | ||
| 86 | Alba | Blaj | Vinczeller Stefan, Vinczeller Anuska | 1101/15 | Arabil | 77916 | 77916 | Extravilan | 1.200 | 59 | 265,50 | 0,00 | 265,50 | ||
| 87 | Alba | Blaj | Berkeczi Stefan | 1101/14 | Arabil | 77917 | 77917 | Extravilan | 3.600 | 188 | 846,00 | 0,00 | 846,00 | ||
| 88 | Alba | Blaj | Vinczeller Nicolae, Bartha Gheorghe | 1101/17 | Arabil | 77918 | 77918 | Extravilan | 2.300 | 126 | 567,00 | 0,00 | 567,00 | ||
| 89 | Alba | Blaj | Balaj Ana | 1101/18 | Arabil | 77919 | 77919 | Extravilan | 2.500 | 185 | 832,50 | 0,00 | 832,50 | ||
| 90 | Alba | Blaj | Erosdi Hedvig | 1101/19 | Arabil | 77920 | 77920 | Extravilan | 3.200 | 467 | 2.101,50 | 0,00 | 2.101,50 | ||
| 91 | Alba | Blaj | Ioo Elisabeta | 1101/20 | Arabil | 77921 | 77921 | Extravilan | 1.400 | 217 | 976,50 | 0,00 | 976,50 | ||
| 92 | Alba | Blaj | Gaspar Martin, Gaspar Mihai, Szekeli Elisabeta, Polgar Ileana | 1101/21 | Arabil | 77922 | 77922 | Extravilan | 4.400 | 672 | 3.024,00 | 0,00 | 3.024,00 | ||
| 93 | Alba | Blaj | Gaspar Csaba | 1101/22 | Arabil | 77923 | 77923 | Extravilan | 2.700 | 352 | 1.584,00 | 0,00 | 1.584,00 | ||
| 94 | Alba | Blaj | Pacurar Maria, Chibeleanu Lucretia, Cocos Traian | 1101/15 | Arabil | 77924 | 77924 | Extravilan | 2.700 | 184 | 828,00 | 0,00 | 828,00 | ||
| 95 | Alba | Blaj | Gaspar Csaba | 1101/24 | Arabil | 77925 | 77925 | Extravilan | 2.700 | 141 | 634,50 | 0,00 | 634,50 | ||
| 96 | Alba | Blaj | Vinczeller Stefan | 1101/25 | Arabil | 77926 | 77926 | Extravilan | 2.900 | 133 | 598,50 | 0,00 | 598,50 | ||
| 97 | Alba | Blaj | Balasz Gheorghe | 1101/26 | Arabil | 77927 | 77927 | Extravilan | 2.900 | 101 | 454,50 | 0,00 | 454,50 | ||
| 98 | Alba | Blaj | Vinteleer Gheorghe | 1101/27 | Arabil | 77928 | 77928 | Extravilan | 4.900 | 128 | 576,00 | 0,00 | 576,00 | ||
| 99 | Alba | Blaj | Vinczeller Stefan | 1101/28 | Arabil | 77929 | 77929 | Extravilan | 4.900 | 74 | 333,00 | 0,00 | 333,00 | ||
| 100 | Alba | Blaj | Csegezi-Balázs Balazs | 1101/25 | Arabil | 77930 | 77930 | Extravilan | 2.900 | 32 | 144,00 | 0,00 | 144,00 | ||
| 101 | Alba | Blaj | Adam Maria, Vinczeller Gheorghe, Vinczeller Martin | 1101/27/a | Arabil | 77931 | 77931 | Extravilan | 2.900 | 32 | 144,00 | 0,00 | 144,00 | ||
| 102 | Alba | Blaj | Adam Maria, Vinczeller Gheorghe, Vinczeller Martin | 1101/27/b | Arabil | 77932 | 77932 | Extravilan | 2.000 | 28 | 126,00 | 0,00 | 126,00 | ||
| 103 | Alba | Blaj | Vapler Karol | 850/90a | Vii | 77933 | 77933 | Extravilan | 5.800 | 1.384 | 6.228,00 | 0,00 | 6.228,00 | ||
| 104 | Alba | Blaj | Asociaţia Bunii Gospodari Blaj | 968/1 | Păşune | 79245 | 79245 | Extravilan | 83.018 | 41 | 123,00 | 0,00 | 123,00 | ||
| 105 | Alba | Blaj | Gaspar Ladislau | 1114/1 | Livezi | 79274 | 79274 | Extravilan | 2.100 | 315 | 1.449,00 | 0,00 | 1.449,00 | ||
| 106 | Alba | Blaj | Gaspar Ladislau | 1114/10 | Livezi | 79313 | 79313 | Extravilan | 1.000 | 170 | 782,00 | 0,00 | 782,00 | ||
| 107 | Alba | Blaj | Gaspar Ladislau | 1114/8/A/2 | Livezi | 79322 | 79322 | Extravilan | 2.000 | 86 | 395,60 | 0,00 | 395,60 | ||
| 108 | Alba | Blaj | Gaspar Stefan, Gaspar Ildiko | 1114/8 | Arabil | 80145 | 80145 | Extravilan | 3.600 | 413 | 1.858,50 | 0,00 | 1.858,50 | ||
| 109 | Alba | Blaj | Ghizdavu Letitia Margareta, Ghizdavu Pellascio Simona Maria, Ghizdavu Letitia Liana | 1158/1/18 | Arabil | 81053 | 81053 | Extravilan | 10.400 | 2.869 | 28.690,00 | 0,00 | 28.690,00 | ||
| 110 | Alba | Blaj | Popa Ioan, Bidica Maria | 1158/1/18 | Arabil | 81054 | 81054 | Extravilan | 20.400 | 5.580 | 55.800,00 | 0,00 | 55.800,00 | ||
| 111 | Alba | Blaj | Muntean Dorina-Virginia, Suciu Ruxandra-Lavinia | 1158/1/12 | Arabil | 81060 | 81060 | Extravilan | 7.600 | 568 | 5.680,00 | 0,00 | 5.680,00 | ||
| 112 | Alba | Blaj | Borsan Gheorghe | 1195/1/40 | Vii | 81095 | 81095 | Extravilan | 18.100 | 4.694 | 37.552,00 | 0,00 | 37.552,00 | ||
| 113 | Alba | Blaj | Gînta Ana | 1195/1/33/4 | Vii | 81100 | 81100 | Extravilan | 8.400 | 4.726 | 37.808,00 | 0,00 | 37.808,00 | ||
| 114 | Alba | Blaj | Glogovetan Ilie, Glogovetan Marcu, Glogovetan Nicolae, Cimpian Mariana | 1220/1/83 | Vii | 81511 | 81511 | Extravilan | 3.615 | 1.142 | 9.136,00 | 0,00 | 9.136,00 | ||
| 115 | Alba | Blaj | Bucur Sever, Bucur Artimon, Bojinca Maria | 1227/2/3 | Vii | 81512 | 81512 | Extravilan | 11.500 | 2.400 | 19.200,00 | 0,00 | 19.200,00 | ||
| 116 | Alba | Blaj | Panazan Ana | 1410/2/3/1/4/1, 1410/2/3/2/2, 1410/2/5/9/1, 1410/2/5/7/2, 1410/2/3/2/2 | Vii | 81530 | 81530 | Extravilan | 2.390 | 624 | 4.992,00 | 0,00 | 4.992,00 | ||
| 117 | Alba | Blaj | Barbat Maria | 1410/2/5/10/2/1,1410/2/3/3, 1410/2/3/5/1, 1410/2/5/9/2, 1410/2/5/7/3, 1410/2/5/11/7 | Vii | 81532 | 81532 | Extravilan | 2.300 | 1.069 | 8.552,00 | 0,00 | 8.552,00 | ||
| 118 | Alba | Blaj | Barbat Ioan | 1410/2/28/1/2 | Vii | 81534 | 81534 | Extravilan | 860 | 487 | 3.896,00 | 0,00 | 3.896,00 | ||
| 119 | Alba | Blaj | Brad Ioan | 1410/2/1/1/4 | Vii | 81545 | 81545 | Extravilan | 1.500 | 1.498 | 11.984,00 | 0,00 | 11.984,00 | ||
| 120 | Alba | Blaj | Marginean Ana | 1410/2/1/1/3 | Vii | 81546 | 81546 | Extravilan | 1.400 | 1.372 | 10.976,00 | 0,00 | 10.976,00 | ||
| 121 | Alba | Blaj | Hategan Veronica | 1410/2/1/1/2 | Vii | 81547 | 81547 | Extravilan | 2.800 | 2.050 | 16.400,00 | 0,00 | 16.400,00 | ||
| 122 | Alba | Blaj | Mihu Iulius-Ionel, Mihu Alina | 191/1/a/3,191/1/b/1 | Arabil | 81916 | 81916 | Intravilan | 13.000 | 529 | 37.030,00 | 0,00 | 37.030,00 | ||
| 123 | Alba | Blaj | Parohia Greco-Catolica Sâncel - domeniu privat | 1026 | Arabil | 81952 | 81952 | Extravilan | 30.000 | 643 | 6.430,00 | 0,00 | 6.430,00 | ||
| 124 | Alba | Blaj | Boitor Gheorghe, Boitor Ioan, Alexandrescu Maria, Pop Ghe. Ileana | 195/11 | Arabil | TP 19575/2522 | Extravilan | 3.500 | 156 | 702,00 | 0,00 | 702,00 | |||
| 125 | Alba | Blaj | Hermenczi Etelka | 195/8 | Arabil | TP 14102/2643 | Extravilan | 1.300 | 211 | 949,50 | 0,00 | 949,50 | |||
| 126 | Alba | Blaj | Komives Clara | 1114/13/2 | Altele | TP 14102/2640 | Extravilan | 800 | 217 | 325,50 | 0,00 | 325,50 | |||
| 127 | Alba | Blaj | Komives Clara | 1114/13/1 | Arabil | TP 14102/2640 | Extravilan | 1.300 | 402 | 1.809,00 | 0,00 | 1.809,00 | |||
| 128 | Alba | Blaj | Muresan Ana, Dumitru Sofron | 195/10 | Arabil | TP 14102/2644 | Extravilan | 1.400 | 203 | 913,50 | 0,00 | 913,50 | |||
| 129 | Alba | Blaj | Simon Iosif | 195/9 | Arabil | TP 14164/2768 | Extravilan | 1.300 | 216 | 972,00 | 0,00 | 972,00 | |||
| 130 | Alba | Blaj | Szekely Ghe. Adelhaida | 195/7 | Arabil | TP 19587/2533 | Extravilan | 2.900 | 354 | 1.593,00 | 0,00 | 1.593,00 | |||
| 131 | Alba | Blaj | Orban A. Vilma | 195/6 | Arabil | 11529/2363 | Extravilan | 2.900 | 147 | 661,50 | 0,00 | 661,50 | |||
| 132 | Alba | Blaj | Latiu Sorica, Latiu Axente-Petru | 173/4 | Arabil | 81944 | 81944 | Extravilan | 5.800 | 525 | 5.250,00 | 0,00 | 5.250,00 | ||
| 133 | Alba | Blaj | Boalasz Andrei, Boalasz Margit | 190/2/b | Fâneţe | 81920 | 81920 | Intravilan | 1.322 | 296 | 20.720,00 | 0,00 | 20.720,00 | ||
| 134 | Alba | Blaj | Poptelecan Ioan-Calin, Poptelecan Mihnea-Cosmin, Poptelecan Bogdan Adrian | 1100/2,1100/2,1100/1 | Curţi-construcţii | 81716 | 81716 | Intravilan | 13.700 | 475 | 54.625,00 | 0,00 | 54.625,00 | ||
| 135 | Alba | Blaj | Barna Florin-Augustin, Barna Ana-Ramona | 191/1/b/2 | Fâneţe | 81917 | 81917 | Intravilan | 7.000 | 1.527 | 106.890,00 | 0,00 | 106.890,00 | ||
| 136 | Alba | Blaj | Balazs Gheorghe | 1114/12 | Arabil | TP 19575/2496 | Extravilan | 1.300 | 112 | 504,00 | 0,00 | 504,00 | |||
| 137 | Alba | Blaj | Boalasz Ghe. Gheorghe | 190/1/a | Arabil | TP 19575/2502 | Extravilan | 3.000 | 454 | 2.043,00 | 0,00 | 2.043,00 | |||
| 138 | Alba | Blaj | Stroescu V. Elena | 178/1/35 | Arabil | TP 6495/896 | Extravilan | 23.200 | 7.532 | 33.894,00 | 0,00 | 33.894,00 | |||
| 139 | Alba | Blaj | Morar T. Victor, Morar T. Traian, Latiu Sorica, Latiu Axente-Petru, Moraru Eugen, Morar Ovidiu-Traian | 173/5 | Arabil | 81943 | 81943 | Extravilan | 5.800 | 527 | 5.270,00 | 0,00 | 5.270,00 | ||
| 140 | Alba | Blaj | Bartha Martin, Szentgyorgyi Elisabeta, Bartha Gheorghe | 195/1 | Arabil | TP 19575/2517 | Extravilan | 11.600 | 565 | 2.542,50 | 0,00 | 2.542,50 | |||
| 141 | Alba | Blaj | AGT Solar Energy - S.R.L. | 1100/1 | Fâneţe | 81715 | 81715 | Intravilan | 100 | 8 | 560,00 | 0,00 | 560,00 | ||
| 142 | Alba | Blaj | Bandi Elena | 1101/12 | Arabil | 77913 | Extravilan | 1.400 | 57 | 256,50 | 0,00 | 256,50 | |||
| 143 | Alba | Blaj | Salcudean Teodor Alin | 1158/1/19 | Arabil | 72541 | 72541 | Extravilan | 15.400 | 4.224 | 42.240,00 | 0,00 | 42.240,00 | ||
| 144 | Alba | Blaj | Parohia Reformată Blaj - domeniu privat | 1250/1/2 | Vii | 74350 | 74350 | Extravilan | 65.600 | 3.654 | 29.232,00 | 0,00 | 29.232,00 | ||
| 145 | Alba | Blaj | Parohia Reformată Blaj - domeniu privat | 1237/1/35 | Vii | 74360 | 74360 | Extravilan | 19.500 | 1.544 | 12.352,00 | 0,00 | 12.352,00 | ||
| 146 | Alba | Blaj | Ivan Viorel, Ivan Mariana | Vii | 81031 | 81031 | Extravilan | 50.000 | 783 | 6.264,00 | 0,00 | 6.264,00 | |||
| 147 | Alba | Blaj | Popa Ioan, Bidica Maria | 1158/1/17 | Arabil | 81055 | 81055 | Extravilan | 6.000 | 22 | 220,00 | 0,00 | 220,00 | ||
| 148 | Alba | Blaj | Ghizdavu Letitia Margareta, Ghizdavu Pellascio Simona Maria, Ghizdavu Letitia Liana | 1158/1/5/2 | Arabil | 81059 | 81059 | Extravilan | 21.000 | 198 | 1.980,00 | 0,00 | 1.980,00 | ||
| 149 | Alba | Blaj | Panazan Vasile, Panazan Marcela | 1410/2/3/1/3/1, 1410/2/5/5/2, 1410/2/3/2/1, 1410/2/5/7/1 | Vii | 81528 | 81528 | Extravilan | 1.300 | 12 | 96,00 | 0,00 | 96,00 | ||
| 150 | Alba | Blaj | Mitropolia Română Unită cu Roma Greco-Catolică Blaj - domeniu privat | 1138/3 | Arabil | 81614 | 81614 | Intravilan | 41.655 | 223 | 15.610,00 | 0,00 | 15.610,00 | ||
| 151 | Alba | Blaj | Proprietar neidentificat*) | 151 | 1240/1 | Arabil | Extravilan | 6.749 | 6.205 | 49.640,00 | 0,00 | 49.640,00 | |||
| 152 | Alba | Blaj | Proprietar neidentificat*) | 89 | 1117/1 | Arabil | Extravilan | 7.229 | 1.203 | 5.413,50 | 0,00 | 5.413,50 | |||
| TOTAL | 1.398.875 | 185.829 | 3.034.099,50 | 932.086,50 | 3.966.186,00 | ||||||||||
| Nr. crt. | Judeţul | Unitatea administrativ-teritorială | Denumirea proprietarului/deţinătorului dreptului de administrare | Nr. MF | Tarla | Parcelă | Categoria de folosinţă | Număr cadastral/Număr topo | Număr carte funciară | Extravilan/Intravilan | Suprafaţa totală (mp) | Suprafaţa supusă transferului (mp) |
| 0 | 1 | 2 | 3 | 4 | 5 | 6 | 7 | 8 | 9 | 10 | 11 | 12 |
| 1 | Alba | Blaj | Statul român - Ministerul Transporturilor şi Infrastructurii, prin Compania Naţională de Administrare a Infrastructurii Rutiere - S.A. | 99811 (parţial) | DR | 82162 | 82162 | Extravilan | 45.134 | 4.828 | ||
| 2 | Alba | Blaj | Statul român - Administraţia Naţională „Apele Române“ | 101362 (parţial) | HR | 81167 | 81167 | Extravilan | 78.272 | 7.227 | ||
| 3 | Alba | Blaj | Statul român - Ministerul Transporturilor şi Infrastructurii, prin Compania Naţională de Administrare a Infrastructurii Rutiere - S.A. | 99811 (parţial) | DR | 82980 | 82980 | Intravilan, extravilan | 57.925 | 951 | ||
| 4 | Alba | Blaj | Statul român - Ministerul Transporturilor şi Infrastructurii, prin Compania Naţională de Căi Ferate „C.F.R.“ - S.A. | 147827 (parţial) | CF | 80769 | 80769 | Intravilan, extravilan | 31.923 | 2.982 | ||
| TOTAL: | 213.254 | 15.988 | ||||||||||
| Nr. crt. | Judeţul | Unitatea administrativ-teritorială | Denumirea proprietarului/deţinătorului dreptului de administrare | Parcela | Categoria de folosinţă | Număr cadastral/Număr topo | Număr carte funciară | Extravilan/Intravilan | Suprafaţa totală (mp) | Suprafaţa supusă transferului (mp) |
| 0 | 1 | 2 | 3 | 4 | 5 | 6 | 7 | 8 | 9 | 10 |
| 1 | Alba | Blaj | UAT Blaj | Drum | 80425 | Intravilan | 9.618 | 92 | ||
| 2 | Alba | Blaj | UAT Blaj | 874/1 | Drum | 77938 | Extravilan | 649 | 87 | |
| 3 | Alba | Blaj | UAT Blaj | 170/1/1 | Arabil | 81923 | Intravilan | 4.895 | 183 | |
| 4 | Alba | Blaj | UAT Blaj | 1024 | Altele | 81954 | Extravilan | 4.172 | 586 | |
| 5 | Alba | Blaj | UAT Blaj | 1220/1/36 | Drum | 81550 | Extravilan | 9.170 | 3.146 | |
| 6 | Alba | Blaj | UAT Blaj | 903/1 | Drum | 77940 | Extravilan | 3.086 | 18 | |
| 7 | Alba | Blaj | UAT Blaj | Arabil | 81953 | Intravilan | 67.335 | 19.987 | ||
| 8 | Alba | Blaj | UAT Blaj | Drum | 81181 | Intravilan | 27.342 | 856 | ||
| 9 | Alba | Blaj | UAT Blaj | 168/1/2 | Arabil | 81924 | Intravilan | 438 | 311 | |
| 10 | Alba | Blaj | UAT Blaj | Drum | 76117 | Intravilan | 4.412 | 236 | ||
| 11 | Alba | Blaj | UAT Blaj | Arabil | 77934 | Extravilan | 5.319 | 342 | ||
| 12 | Alba | Blaj | UAT Blaj | Drum | 76118 | Extravilan | 5.488 | 139 | ||
| 13 | Alba | Blaj | UAT Blaj | 895/1 | Drum | 77939 | Extravilan | 2.685 | 931 | |
| 14 | Alba | Blaj | UAT Blaj | 1410/2/4 | Drum | 81549 | Extravilan | 2.656 | 2 | |
| 15 | Alba | Blaj | UAT Blaj | 1193 | Drum | 81065 | Intravilan | 1.277 | 337 | |
| 16 | Alba | Blaj | UAT Blaj | 1202 | Drum | 81104 | Extravilan | 4.021 | 230 | |
| 17 | Alba | Blaj | UAT Blaj | 1195/1/34 | Drum | 81105 | Extravilan | 2.425 | 1.242 | |
| 18 | Alba | Blaj | UAT Blaj | 1194 | Arabil | 81056 | Extravilan | 5.382 | 2.843 | |
| 19 | Alba | Blaj | UAT Blaj | Drum | 81160 | Intravilan | 2.797 | 149 | ||
| 20 | Alba | Blaj | UAT Blaj | 1237/1/1 | Drum | 81551 | Extravilan | 5.108 | 1.572 | |
| 21 | Alba | Blaj | UAT Blaj | 1251/1 | Drum | 81552 | Extravilan | 2.900 | 57 | |
| 22 | Alba | Blaj | UAT Blaj | Curţi-construcţii | 81929 | Intravilan | 34.168 | 6.784 | ||
| 23 | Alba | Blaj | UAT Blaj | 168/1/3 | Drum | 81927 | Intravilan | 837 | 432 | |
| 24 | Alba | Blaj | UAT Blaj | 183/1 | Drum | 183/1 | Extravilan | 552 | 552 | |
| 25 | Alba | Blaj | UAT Blaj | 172 | Drum | 172 | Extravilan | 729 | 7 | |
| 26 | Alba | Blaj | UAT Blaj | 168 | Drum | 168 | Extravilan | 197 | 20 | |
| 27 | Alba | Blaj | UAT Blaj | 203 | Drum | 451 | 203 | Extravilan | 7.229 | 56 |
| 28 | Alba | Blaj | UAT Blaj | 1100 | Drum | 1100 | Extravilan | 580 | 53 | |
| 29 | Alba | Blaj | UAT Blaj | 1153 | Drum | 1153 | Intravilan | 1.584 | 32 | |
| 30 | Alba | Blaj | UAT Blaj | 194 | Drum | 194 | Extravilan | 4.308 | 3.463 | |
| 31 | Alba | Blaj | UAT Blaj | 1202/1 | Drum | 1202/1 | Extravilan | 1.337 | 260 | |
| 32 | Alba | Blaj | UAT Blaj | 1242 | Drum | 1242 | Extravilan | 1.794 | 1.525 | |
| 33 | Alba | Blaj | UAT Blaj | 970 | Drum | 970 | Intravilan | 1.341 | 6 | |
| 34 | Alba | Blaj | UAT Blaj | 177 | Drum | 177 | Extravilan | 13.316 | 364 | |
| 35 | Alba | Blaj | UAT Blaj | 159/1 | Drum | 159/1 | Extravilan | 190 | 190 | |
| 36 | Alba | Blaj | UAT Blaj | 159/2 | Drum | 159/2 | Extravilan | 22 | 22 | |
| 37 | Alba | Blaj | UAT Blaj | 200 | Drum | 200 | Extravilan | 3.651 | 24 | |
| 38 | Alba | Blaj | UAT Blaj | 977 | Drum | 977 | Extravilan | 1.716 | 53 | |
| TOTAL: | 244.726 | 47.189 | ||||||||

Prezenta formă este valabilă începând cu data de 16-12-2025 până la data de 16-12-2025
























